Спасибі, ми з Вами зв'яжемося найближчим часом.
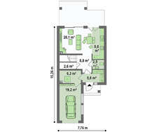
.jpg)
Приватний будинок хороший тоді, коли в ньому комфортно і затишно жити. Все в ньому має бути функціональним і практичним. Розміри кімнат повинні відповідати їх призначенню. Якщо мова йде про вітальні, то вона повинна бути просторою і добре освітлюваною. А ось спальні зовсім не обов'язково бути великою. Головне, щоб було достатньо місця для ліжка і місткої шафи. Але, вона повинна бути добре провітрювана. Окремої уваги потребує такий елемент архітектури, як тераса. В цілому, тераса - це відкритий, майданчик без стін. Це слово походить від французького «terrasse» - майданчик. Бувають також криті тераси, тобто мають дах. Дах, при цьому, тримається на стовпових опорах.
Тераса може знаходитися як внизу, з виходом з першого поверху, так і на даху, наприклад, гаража, з виходом з другого поверху. На терасі добре пити чай і вечорами проводити заходи сонця. Звичайно, тераса асоціюється, насамперед, з літом і теплом. Але посиденьки на свіжому повітрі гарні в будь-яку пору року. Восени або навесні можна замотатися в плед і з чашкою гарячого чаю послухати пташині трелі або шелест опадаючого листя. І навіть у зимовий сонячний день непогано вийти на терасу.
Вибираючи, важливо звернути увагу на її місце розташування. Навряд чи буде затишно сидіти на тій, яка виходить на вулицю на загальний огляд. Має значення і орієнтація відносно сторін світу. Добре якщо з тераси будуть видні і заходи і світанки. Для цього її потрібно розмістити з південної або північної сторони, з гарним оглядом на схід і захід. Звичайно, єдиних правил в такому підборі не існує, все індивідуально, але до загальних порад прислухатися варто.
Тераса, як і всі інші елементи житлового будинку, проектується спочатку і в проект вона теж вноситься, хоч стін і не має. Адже це не складний архітектурний елемент, що не вимагає інженерних систем і складних розрахунків. Навіть якщо над терасою є дах, вона не вимагає перекриттів, або інших складнощів. А от якщо її відразу не внести в проект, то при введенні будинку в експлуатацію можуть виникнути складнощі і проект доведеться переробляти. Тому краще відразу, щоб потім не довелося платити двічі.
Так історично склалося, що спочатку терасами називали природні уступи на схилах, що утворилися без втручання людини. Вони були створені природою і нічого спільного з будівництвом не мали. Ідеї таких природних ландшафтів дуже швидко були запозичені людиною. Перші тераси робили з дерева. Як тільки людина навчилася стелити дерев'яні підлоги, так відразу ж стали використовувати ці вміння в будівництві терас. Сьогодні ж їх роблять з бетону і каменю, підлогу вистилають кахлем або тротуарною плиткою. Сучасні майданчики є гармонійним переходом житлової площі будинку в сад. Вони максимально зближують ландшафт з дизайном та інтер'єром будинку. З одного боку вони є продовженням будинку і збільшують його простір, особливо в теплу пору року, а з іншого - знаходяться вже на вулиці і є частиною двору і саду. Це не тільки красиво, але і зручно. Дуже вигідно вони виглядають на нерівній місцевості. Плавні переходи ландшафту - це відмінний плацдарм для облаштування тераси. Завдяки такому нехитрому архітектурному рішенню, можна красиво обіграти всі нерівності і перетворити їх на родзинку дому і саду.