Спасибі, ми з Вами зв'яжемося найближчим часом.

Людині властиво мріяти. Одна з найпотаємніших фантазій - це майбутній будинок. Ні, не квартира, а саме просторий сучасний котедж з доглянутими доріжками, стриженим газоном і клумбами яскравих кольорів. Щоб задумки не залишилися нездійсненними мріями, майбутній забудовник робить перші замітки, ставить знаки питання, від руки креслить контури. Спочатку - це безглуздий малюнок, начерк або ескіз, з часом він обростає розмірами, плануванням, розрахунками та поясненнями і перетворюється в креслення будинку.
Креслення будинку своїми руками: міф чи реальність
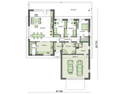
Креслення житлового будинку починається з вибору ділянки під будівництво та орієнтації котеджу по сторонах світу. Від цього залежить вся майбутня планування. Кількість кімнат визначається за кількістю мешканців і на перспективу, кожному з домочадців необхідна окрема спальня. Враховується функціональність будинку. При проектуванні враховується необхідність в кімнатах загального користування: вітальні, їдальні, кухні. Крім обов'язкових приміщень, креслення поверху будинку повинен включати санвузол.
Людина, яка має спеціальних знань, профільної освіти та практичних навичок не сміє виготовити креслення будинків, складових графічну частину проекту. Тому, правильним рішенням буде звернутися в архітектурне бюро і довірити відповідальне завдання професіоналам. Обов'язкова умова, щоб то була легальна організація, що має державну ліцензію на ведення проектних робіт. Розумний підхід позбавить від неприємностей з отриманням дозволу на початок будівництва, яке видають контролюючі органи.
Не варто думати, що всі мрії і фантазії забудовника, що зберігаються в папці ескізів, які не будуть оцінені і враховані. Фахівці компанії DOM4M детально вивчать креслення будинку, внесуть корективи, креативні ідеї візьмуть за основу при складанні документації для індивідуального проектування.
Ескізи знадобляться для вибору типового проекту. В арсеналі компанії їх більше 1000. Замовник знайде креслення будинків з мансардою, одне і двоповерхових котеджів, елітних особняків в три і більше рівня. Типовий проект - це перевірений часом креслення приватного будинку, який має не одиничне втілення в реальності. Такий варіант вигідний і допоможе заощадити час замовника.