З правилами ознайомлений (а) Авторизація
Авторизація потрібна для збереження Вашого "Обраного".
Увійти за допомогою:
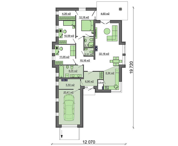
  • Перший поверх:
    Перший поверх::
    Перший поверх::
    Розташування на ділянці:
    Проект одноповерхового будинку з декором зі штучного каменю
  • 4M635 Проект одноповерхового будинку з декором зі штучного каменю

    Артикул4M635
    Кількість поверхів:1
    Загальна площа:140.87 м2
    Житлова площа:65.98 м2
    Висота будинку:6.45 м
    Висота стелі:2.80 м
    Кут нахилу покрівлі:25 °
    Площа даху:261.00 м2
    Кількість спалень:3
    Кількість санвузлів:3
    Гараж:Гараж на одне авто
    Мінімальний розмір ділянки (довжина):20.00 м
    Мінімальний розмір ділянки (ширина):28.00 м
    Площа забудови:197.4 м2
    Матеріали:
    Стіни:газобетонні блоки
    Перекриття:по дерев'яних балках
    Дах:металочерепиця
    Фундамент:монолітна стрічка

    Спасибі, ми з Вами зв'яжемося найближчим часом.

    Отримати подарунок

    Ваші дані захищені

Плани поверхів
  • Перший поверх:
    Перший поверх:
    Перший поверх:
Фасади та розташування на ділянці
  • Розташування на ділянці:
    Проект одноповерхового будинку з декором зі штучного каменю
Склад проекту

Купуючи проект будинку в компанії Dom4M, Ви отримуєте комплект креслень, необхідний для проведення будівельних робіт.

В основному складі наш проект містить Пояснювальну записку та три великих розділи - Архітектурний, Конструктивний та Інженерний: водопостачання, опалення, вентиляція, каналізація, електропостачання ( купується за додаткову плату ).

 1. До складу Архітектурного розділу входять:

  • Поверхові плани з експлікацією приміщень
  • План покрівлі
  • Розрізи та склад конструкцій
  • Фасади з даними зовнішніх оздоблень
  • Елементи прорізів – специфікація
  • Дані перемичок – перетин та специфікація
  • Експлікація підлог
  • Обсяги основних будівельних матеріалів
  • Архітектурні вузли в конструкціях

2. До складу Конструктивного розділу входять:

  • Загальні дані по проекту
  • Схеми розташування та розрахунки фундаментів
  • Елементи каркасу – схеми розташування
  • Схема розташування перекриттів
  • Опори перекриття на стіни або вузли армування
  • Елементи покрівлі – схеми розташування
  • Креслення окремих елементів, вузли кріплення, перетини
  • Відомості витрати сталі і бетону

3. Інженерний розділ (купується додатково за бажанням):

Водопостачання і каналізація

  • Умовні позначення із загальними даними
  • Система водопостачання і каналізації
  • Вузли й специфікація матеріалів

Опалення, вентиляція

  • Умовні позначення із загальними даними
  • Система опалення
  • Система вентиляції
  • Специфікація матеріалів

Електротехнічні рішення:

  • Умовні позначення та загальні дані
  • Принципова схема ВРУ
  • План мереж освітлення, план силових мереж
  • Схема системи рівняння потенціалів
  • Схема повторного контуру заземлення
  • Специфікація матеріалів

Термін виготовлення проекту будинку становить від 7 до 35 робочих днів.
Обсяг проектної документації – від 50 до 90 сторінок формату А4 чи А3, в залежності від складності проекту

  • Проекти є типовими і не враховують конкретних умов будівництва.

Наша команда Архітекторів, Конструкторів та Інженерів – завжди готова втілити Вашу мрію в реальність!
Ми можемо вносити будь-які зміни в проект за Вашим побажанням і адаптувати його з урахуванням конкретних геолого-топографічних та кліматичних умов, за додаткову плату.

  • Отримати професійну консультацію наших фахівців, Ви можете будь-яким зручним способом зв'язку: замовте зворотній дзвінок, viber, e-mail, телефон – наші контакти.

Завжди раді Вам допомогти!

 

Прочитати повний текст
Додаткові пакети

Пакет "Інженерні мережі"

Проект будинку – пакет документації, що складається з Архітектурного, Конструкторського та Інженерного розділів. Основу проекту складають Архітектурний та Конструкторський розділи. Загалом, якщо замовник довіряє виконробу і вважає, що той може зібрати професійну команду фахівців з інженерних комунікацій, то від розробки інженерної частини можна і відмовитися. Але справа в тому, що архітектор, конструктор і інженер над проектом працюють спільно і такі моменти, як, наприклад, технологічні отвори у перекриттях та стінах для прокладення інженерних систем, передбачаються ними ще на стадії проектування.

Інженерний розділ включає в себе кілька підрозділів

Водопостачання та каналізація (ВК)

  • схема водопостачання
  • схема каналізації
  • загальний вигляд системи.

Опалення та вентиляція (ОВ)

  • схема опалення
  • схема вентиляції
  • обв'язка котла
  • загальні вказівки та рекомендації по розділу.

Електропостачання (ЕТР)

  • розведення освітлення
  • розведення силових мереж
  • схема ВРУ
  • система по заземленню
  •  детальний опис і характеристики всіх елементів системи.

ВАЖЛИВО
Простежте, щоб у розділах містилися загальні дані, загальний та технічний опис, специфікація матеріалів та обладнання.

Ціна: від 150 грн. за м²

Пакет "Інженерні мережі"

Пакет "Інженерні мережі"

Інженерні системи дозволять грамотно прокласти комунікації та зробити будинок по-справжньому комфортним і сучасним.

  • Ціна: від 150 грн за м²

Зміни в проекті

 Всі наші типові проекти враховують основні потреби середньостатистичної сім'ї, щоправда, в такому випадку говорити про індивідуальність вашого майбутнього житла не доводиться. Але, щоб будинок виглядав оригінально і повністю відповідав вашим вимогам, ми готові внести зміни в проект.
ВАЖЛИВО:

  • зміни не повинні впливати на надійність та якість будинку
  • чисельні зміни навряд чи кардинально поліпшать проект. У такому випадку варто подумати про індивідуальне проектування з нуля.

Можуть бути внесені наступні зміни у проект будинку:

  • перенесення стінних перегородок, але без зміщення несучих стін, дозволяє зробити перепланування та змінити призначення кімнат
  • зміна розташування вікон та дверей дозволить максимально реалізувати Ваші уявлення про комфорт
  • зміна типу перекриттів та стін
  • зміна висоти стель (в проектах закладена висота 2,8 м)
  • додати мансардний поверх
  • зміна кута нахилу покрівлі та навісів
  • зміна типу фундаменту, з урахуванням особливостей ґрунту на ділянці, додати або змінити підвальне приміщення та цокольний поверх
  • додати або прибрати гараж, навіс, відкриту стоянку або внести зміни у вже існуючий проект
  • замінити конструктивний склад або додати будівельні та оздоблювальні матеріали
  • отримати проект в дзеркальному зображенні

Ціна: від 2500 грн.

Зміни в проекті

Зміни в проекті

Будинок, побудований за типовим проектом, теж може виглядати оригінально

 

  • Ціна: від 2 500 грн.

BIMx модель

Ми йдемо в ногу з часом і вже сьогодні пропонуємо вам можливість отримати разом з проектною документацією BIMx модель - заснованої на технології, що забезпечує одночасну навігацію по 2D-документації і 3D-моделей будівель.

Тепер ви зможете «покрутити, походити всередині, побачити ваш майбутній Будинок з усіх боків» Подивитися всі розміри і висоти, специфікації прорізів і тд. Ви отримаєте файл, який буде вашим надійним, зручним помічником для контролю будівництва. 
* Файл ви отримуєте в електронному вигляді і використовуєте за допомогою програми BIMX на мобільних пристроях Apple і Android

Додаток BIMX доступно безкоштовно в Play Market, App store

 
 

Демонстрація BIMx

Ціна: 5200 грн.

 

 

BIMx модель

BIMx модель

 BIMx модель - інтерактивний перегляд тривимірної моделі вашого будинку. Тепер ви зможете «покрутити, походити всередині, побачити ваш майбутній Будинок  з усіх боків»

  • Ціна проекту 5 200 грн.

Пакет "Адаптація фундаменту"

Складно передбачити, який тип ґрунту буде на ділянці, де планується побудувати будинок. Тому типові проекти будинків розробляються з урахуванням усереднених параметрів ґрунту. Але найчастіше вони істотно відрізняються від інженерно-геологічних параметрів реальної ділянки забудови. Отже, фундамент доведеться адаптувати під конкретний проект.
Для цього і розроблено пакет «Адаптація фундаменту», який включає в себе:

  • вибір фундаментних конструкцій
  • розрахунок технічних показників:
  • глибина закладки підошви фундаментів
  • несучі здібності
  • максимальне навантаження ґрунту під підошвою фундаменту
  • площа перерізу робочої арматури, інше.
  • створення креслень нульового циклу

Адаптація фундаменту, виконана фахівцями, дає повну гарантію його надійності, а відповідно і надійності всього будинку. Більше того, будівництво фундаменту, адаптованого за уточненими інженерно-геологічними даними, може виявитися дешевше, ніж варіант, спочатку запропонований у проекті.

Ціна:   5500 грн. 

Адаптація під пальовий фундамент від 6400 грн

Пакет "Адаптація фундаменту"

Пакет "Адаптація фундаменту"

Підготовка проекту фундаменту до  конкретної ділянки

 

 

  • Ціна: від 5 500 грн.

Індивідуальне проектування

За бажання бути оригінальним, несхожим на інших, доводиться платити. Це твердження справедливе і для індивідуального проектування будинків. Так, такий проект завжди унікальний і повністю враховує всі побажання забудовника. Але він і обійдеться дорожче типового. Тут, все залежить від уподобань та фінансових можливостей клієнта.
Але іноді буває й так, що ситуацію може врятувати тільки індивідуальне проектування. Наприклад, коли замовник побачив будинок у глянцевому журналі і категорично вимагає, щоб його житло виглядало саме так. Ось більш прозаїчний випадок: під забудову обрано нестандартну ділянку. А буває й так, замовник у вже обраний типовий проект вносить таку кількість змін і доповнень, що простіше, а головне дешевше, буде розробити проект з нуля.

Створення індивідуального проекту включає в себе:

  • підготовку та затвердження техзавдання
  • укладення договору на проектні роботи і передоплату
  • створення концепції будинку, вибір стилю і планувальних рішень
  • узгодження планів фасадів та приміщень
  • розробку ескізного проекту, який необхідний для отримання дозволу на будівництво
  • опрацювання розділів проекту.
Додатково можна замовити:
  1. Проекти додаткових споруд на ділянці – гараж, майстерня, баня, інше.
  2. Візуалізацію проекту у форматі 3D.

Визначитися зі стилем майбутнього будинку пропонуємо в каталозі  "індивідуальне проектування".

Ціна: від 150 грн. / м²

 

Індивідуальне проектування

Індивідуальне проектування

Реалізуйте свою індивідуальність!

 

 

  • Ціна: від 150 грн / м²

Пакет Геологія

Інженерно-геологічні вишукування проводяться для того, щоб визначити особливості земельної ділянки, обраної під забудову. Головна мета таких робіт у тому, щоб звести до мінімуму всі можливі негативні фактори, які можуть вплинути на будівельні роботи та експлуатацію вже готового будинку. Першочергово, ці дані необхідні для закладки фундаменту. А, як відомо, від його міцності безпосередньо залежить надійність всієї будови.

При цьому виконуються наступні види робіт:

  • обстеження ділянки, відведеної під будівництво, та прилеглих територій
  • відбір зразків ґрунтів на ділянці
  • дослідження зразків ґрунтів для визначення фізико-механічних властивостей
  • геодезична зйомка ділянки з прилеглими територіями і підготовка інженерно-геологічного розрізу.

Інженерно-геологічні вишукування діляться на три категорії складності:

1 категорія
Поверхня земельної ділянки горизонтальна

  • невелика кількість показників мінливості ґрунтів
  • відсутність ґрунтових вод або наявність одного водоносного шару
  • відсутність геологічних процесів та техногенних факторів.

2 категорія
Земельна ділянка з помітним ухилом

  • істотна кількість показників мінливості ґрунтів
  • два та більше водоносних шари
  • при цьому фізико-механічні характеристики істотно не впливають на зміни параметрів фундаменту, закладених у проекті.

3 категорія
Мінливий рельєф земельної ділянки

  • основу ділянки складають ґрунти різноманітного походження
  • велика неоднорідність показників мінливості ґрунтів
  • складні горизонти підземних вод, з чергуванням водоносних і водотривких ґрунтів
  • існують геологічні процеси, що впливають на будівництво та експлуатацію будівлі
  • спостерігаються техногенні впливи.

Необхідно розуміти, що геологічні роботи – це розумні витрати, від яких залежить загальна безпека. До того ж, найчастіше, інженерно-геологічні вишукування допомагають знизити загальну вартість будівлі будинку, коли виявляється, що можна замінити спочатку закладені в проекті будинку матеріали на менш дорогі або знизити їх витрати.


Ціна: від 6000 грн.

 
Пакет Геологія

Пакет Геологія

Якщо ви бажаєте побудувати добротний будинок, в якому буде жити не одне покоління вашої родини, є сенс скористатися пакетом "Геологія", який виконають кваліфіковані фахівці компанії Dom4m

  • Ціна: від 6 000 грн.

Пакет Геодезія

Геодезичні роботи дозволяють не лише оптимально вписати будівлю у навколишній ландшафт та інфраструктуру, а й заощадити час, гроші і не допустити перевитрат матеріалів.

Етапи геодезичних робіт

Топографічна зйомка ділянки
На цьому етапі важливо врахувати висоти, ухили, заболочені місця та рослинність на земельній ділянці, на якій буде розташований будинок.
Топографічна зйомка дає можливість максимально точно розрахувати інженерні роботи, такі як переміщення ґрунту та орієнтація будівлі за сторонами світу.
Крім того, вся інформація наноситься на топографічний план, який надалі стане в нагоді для розробки ландшафтного проекту, дренажу, облаштування побутової та зливової каналізації, систем автоматичного поливу, при роботах по освітленню ділянки та ін.

Землевпорядні роботи

У процесі цих робіт визначаються межі майбутнього домоволодіння та створюється пакет землевпорядних документів. Це дозволить вам без проблем оформити право на користування землею.
Інженерно-геодезичні роботи
У ході досліджень уточнюються геодезичні та топографічні дані. Результатом таких робіт є докладний технічний звіт.
Розбивочні роботи
Паперовий проект максимально точно переноситься на земельну ділянку: наносяться осі споруд та інженерних комунікацій, визначається конфігурація котловану і огорожі.


Ціна: від 3000 грн.

 

Пакет Геодезія

Пакет Геодезія

Пакет "Геодезія" це комплекс розрахунків, які дозволяють грамотно розташувати будинок на ділянці.

  • Ціна: від 3 000 грн.

Тендерна пропозиція

Тендерна пропозиція – документ, в якому ретельно розписані будівельні матеріали, зазначено їх необхідну кількість, а також наведено перелік майбутніх робіт та їх обсяг. Іншими словами, це Ваші витрати на будівлю майбутнього будинку. Але не тільки. Це ще й можливість контролювати витрати і коригувати перелік матеріалів та робіт.

Тендерна пропозиція дозволяє:

  1. розрахувати загальну вартість будівництва
  2. самостійно коригувати ціни по кожній позиції
  3. залучити найбільш вигідних підрядників
  4. грамотно контролювати підрядників на кожному етапі будівництва
  5. контролювати витрати будівельних матеріалів
  6. тендерну пропозицію із зазначенням цін на матеріали і роботи полегшить отримання в банку кредиту на будівництво.

Як правило, замовник отримує від нашої компанії тендерну пропозицію у вигляді таблиці у форматі  *.xls. Це дозволить забудовнику надалі самостійно проводити аналіз та редагування документа.


Ціна: 5800 грн.

Тендерна пропозиція

Тендерна пропозиція

Замовте розгорнутий кошторис. Будуйте з вигодою для себе!

 

 

  • Ціна проекту 5 800 грн.

Вертикальне планування

Основна мета вертикального планування передбачає створення спланованих поверхонь, задовольняючи вимоги будівельних та інженерних норм. Вертикальне планування території покликане створити сприятливі умови для розміщення будівель і споруд, прокладки вулиць, проїздів, підземних інженерних комунікацій та ін. Всі ці заходи пов'язані з роботами по зрізку, підсипання і переміщенню земляних мас. Дотримання балансу земляних робіт дозволить використовувати для насипів грунт, знятий при зміні рельєфу, вийнятий при створенні майданчиків і доріжок, прокладки дренажної.  

Щоб створити вертикальне планування ділянки, проводяться геодезичні дослідження.

  • робиться зйомка земельного наділу, яка дозволить визначити перепади висоти грунту на ділянці. Потім з'ясовується тип ґрунту на ділянці, глибина, на якій проходять підземні води, чи немає у грунту схильності до пученію, коли він промерзає.
  • складання схеми планування ділянки детально. Потрібно визначити, яким буде ділянка по висоті, побудувати висотний каркас території.
  • опрацювання докладного плану, на якому наводяться нові горизонталі, робиться новий проект території.
  • робиться детальна картограма земляних робіт, вираховується точний обсяг грунту.

 

Ціна: від 8500 грн

Вертикальне планування

Вертикальне планування

Основна мета вертикального планування передбачає створення спланованих поверхонь, задовольняючи вимоги будівельних та інженерних норм.

  • Ціна: від 8 500 грн.

Пакет "Антикрига"

У сніжну зиму замети та лід на даху можуть доставити безліч клопоту. Перекриття в сучасному будинку навряд чи обрушаться під їхньою вагою, але сніг що падає за комір і бурульки - це не найприємніше. Можна, звичайно, і дідівським способом почистити дах. Помахати лопатою на морозі 2-3 години, час від часу покрикуючи на домочадців в дусі Василя Алібабайовича з "Джентльменів удачі": "Ти сюди не ходи, ти сюди ходи! А то сніг башка потрапить…"
Але в сучасному світі вже давно створені зручні та ефективні системи сніготанення та антизледеніння. І, до речі, використовуються вони не тільки для дахів. Їх основа – нагрівальні кабелі. Системи працюють за принципом "тепла підлога", але відрізняються більшою потужністю та меншим кроком укладання кабелю.
Пакет "Антикрига" - це проектна документація, розроблена з урахуванням особливостей енергопостачання конкретного будинку:

  • для пласкої покрівлі та водостоків
  • для вхідної групи
  • для під'їзду до гаража.

ВАЖЛИВО:

  • для складної багатоскатної покрівлі фахівці нашої компанії спроектують систему "Антилід" за індивідуальним замовленням.

Ціна: 4900 грн.

Пакет "Антикрига"

Пакет "Антикрига"

Ваш комфорт та безпека в зимовий час

 

 

  • Ціна проекту 4 900 грн.

Пакет "Блискавкозахист"

Захист будинку від блискавки

Більшість забудовників не надають значення захисту власних будинків від блискавки. Причини різні: хтось намагається заощадити, хтось взагалі вважає, що це нісенітниця. Але, як показує практика, за 3-4 роки після будівництва будинку, багато хто повертається до цього питання. Чи то "грім грянув", і в сусіда в грозу згоріла вся побутова техніка, чи то на очі потрапила статистика: "щороку в Україні трапляється близько 3500 пожеж, спричинених ударом блискавки…"
Ми пропонуємо відразу вирішити це питання: вибрати тип захисту і спланувати її розміщення на стадії проектування будинку. По-перше, блискавка може вдарити в будинок і відразу після закінчення робіт з будівництва – прикро буде, а по-друге, з чисто естетичних міркувань – не потрібно буде зайвий раз довбати стіни будинку і тягнути токовідвід по фасаду, порушуючи продуманий зовнішній вигляд будівлі.
Захист будинку від блискавки являє собою систему пристроїв, розташованих як поза домом, так і всередині приміщень. Зовнішній блискавкозахист попереджає попадання блискавки в будинок, внутрішнє – забезпечує захист електромережі від різких стрибків напруги. А додаткові пристрої захищають техніку в будинку від різких змін електромагнітного поля в радіусі удару блискавки.

До пакету "Блискавкозахист" входять:

 

  • план-схема розташування блискавкоприймачів, що приймають прямі удари блискавок
  • схема-розріз струмовідводу, відвідного струму від блискавкоприймача до заземлення
  • схема контуру заземлення, яке розподіляє енергію блискавки в ґрунті, забезпечуючи повну безпеку
  • усереднені розрахунки опору
  • докладний перелік необхідних матеріалів
  • рекомендації щодо реалізації проекту.

Обираючи пакет "Блискавкозахист" від компанії Dom4M, Ви можете бути абсолютно впевнені у безпеці Вашого житла, навіть у найсильнішу грозу.

Ціна: 4900 грн.

 

Пакет "Блискавкозахист"

Пакет "Блискавкозахист"

Подбайте про безпеку заздалегідь

 

 

  • Ціна проекту 4 900 грн.

Пакет "Центральний пилосос"

«Центральний пилосос »являє собою різновид системи аспірації (видалення дрібних частинок за допомогою засмоктування їх повітряним потоком)

Система складається з:

  • пилосос (встановлюється в технічному приміщенні);
  • система повітроводів, по яких рухається пило-повітряна маса (частіше здійснюється прихований монтаж в підготовці підлоги або в просторі за стелею підшивання);
  • пневморозетки і пневмосовкі (до перших підключається гнучкий шланг з телескопічною штангою і насадкою, як в звичайному пилососі, другі призначені для експрес-прибирання, як правило, на кухні). 

 

 Плюсы:

  • Видаляється запилений повітря не потрапляє назад в приміщення, а «викидається» після агрегату на вулицю;
  • Відсутність шуму в збираних приміщеннях. 
  • Зручність прибирання без «перетягування» пилососа з приміщення в приміщення, без використання подовжувачів.
  • Прихований монтаж системи, в кімнаті немає нічого крім пневморозетки.

Ціна проекту: від 4900 грн.

Пакет "Центральний пилосос"

Пакет "Центральний пилосос"

Невід'ємна частина сучасного будинку - комфорт, чистота і свіже повітря

 
  • Ціна: від 4 900 грн.

Пакет "Комфортний будинок"

Тлумачні словники визначають, що комфорт – це сукупність побутових зручностей, без яких неможливо уявити життя сучасної людини
в сучасному будинку. Більшість таких зручностей закладаються ще на стадії проектування. Але ми готові розширити їх список і допомогти клієнтам зробити власне житло максимально комфортним.
Тому наша компанія Dom4M розробила для вас пакет "Комфортний дім", який дозволить зробити житло більш прохолодним в спекотний літній день, а в зимові холоди – затишним і теплим.

У пакет "Комфортний будинок" входять

  • проект "теплої підлоги". Це сучасний спосіб обігріву будинку, який можна підключити як до центральної, так і до місцевої систем опалення;
  • проект системи вентиляції з рекуперацією зацікавить тих, хто вже на стадії проектування будинку замислюється про те, щоб знизити вартість утримання та експлуатації вентиляції у вже готовому житлі;
  • проект системи кондиціонування, який пропонує забудовникам на вибір канальний кондиціонер з роздачею повітря по приміщеннях або мультиспліт-систему.

Ціна:  від 19700 грн

Пакет "Комфортний будинок"

Пакет "Комфортний будинок"

Не відмовляйте собі в комфорті

 

 

  • Ціна: від 19 700 грн.

Пакет "Тепла підлога"

Знаючі люди стверджують, що підігрів підлоги застосовували ще у стародавньому Римі. А вони, напевне, зналися на комфорті. Сьогодні цей спосіб опалення не тільки не забутий, а й розвивається на основі сучасних матеріалів та технологій. Тепла підлога стала важливою складовою комфорту та якісним доповненням до будь-якої опалювальної системи.
Пакет "Тепла підлога", який рекомендує наша компанія, дозволить створити в будинку затишну атмосферу і повною мірою оцінити переваги цієї технології:

  • рівномірний розподіл тепла;
  • швидкий та економічний нагрів повітря;
  • зручна система регулювання та підтримки заданої температури.

Пакет "Тепла підлога" припускає індивідуальне проектування:

  • оптимальний підбір конструкції системи;
  • підбір циркуляційних насосів;
  • розрахунок параметрів системи опалення;
  • розрахунок тепловтрат;
  • схеми системи опалення: площа контуру, крок укладання, діаметри труб;
  • специфікація матеріалів та обладнання.

Ціна: 90 грн. за м²

Пакет "Тепла підлога"

Пакет "Тепла підлога"

Комфортний клімат у вашому будинку

  • Ціна: 90 грн за м²

Архітектурний паспорт

Кожен заміський будинок зобов'язаний мати свій паспорт. У цьому документі зібрані загальні відомості про проект будинку. Що називається, не вдаючись у подробиці та деталі. Більш повну інформацію завжди можна знайти в Архітектурному і Конструкторському розділах кожного проекту. У паспорті ж зазначені лише основні розміри, висоти та техніко-економічні параметри.
У Архітектурному паспорті представлені документи, які суттєво прискорять всілякі узгодження в місцевих органах архітектурного нагляду і, зрештою, отримання дозволу на будівництво.

Розділи Архітектурного паспорта

  • Ескізна частина проекту:
  1. плани фасадів
  2. плани поверхів
  3. розрізи по осях
  4. план покрівлі

Архітектурний паспорт краще замовляти в тій же компанії, яка готувала і сам проект будинку: як кажуть, «при великому обсязі, передбачається знижка». Адже, питання економії для будь-якого забудовника важливе. І, крім того, саме архітектори та інженери-конструктори нашої компанії, що працювали над вашим проектом, зможуть зробити це швидко і органічно.

Ціна: 3500 грн.

Архітектурний паспорт

Архітектурний паспорт

Архітектурний паспорт дозволить отримати дозвіл на будівництво в місцевих органах архітектурного нагляду.

  • Ціна проекту 3 500 грн.

Адаптація проекту під сейсмозони

Це велика проблема – вибрати проект будинку для сейсмонебезпечного району. Кількість спеціалізованих проектів дуже обмежена, тому складно підібрати що-небудь, відповідне вашим уявленням про безпечне та затишне житло.
Пропонуємо своє рішення цього питання. Вам не доведеться погоджуватися на компромісний варіант – безпека на шкоду зовнішньому вигляду або навпаки. Ми готові адаптувати будь-який наш проект під сейсмонебезпечний регіон, де дозволено житлову забудову.

ВАЖЛИВО

  • адаптація передбачає зміни в проекті для його відповідності Будівельним нормам України за розділом Будівництво в сейсмічно небезпечних регіонах;
  • кількість і складність змін залежить від обраного проекту і сейсмічних характеристик району.

Ціна: від 16200 грн.

Адаптація проекту під сейсмозони

Адаптація проекту під сейсмозони

Сейсмічно безпечний будинок: надійно, та гарно

  • Ціна: від 16 200 грн.

Додаткова копія проекту

Замовте додаткову копію проекту з печаткою.
При типовому замовленні ми відправляємо два примірники: один примірник передається будівельникам, другий залишається у замовника. Замовте ще один примірник, якщо є необхідність надати його третім особам (постачальникам матеріалів, наприклад).
Також додаткова копія проекту може стати в нагоді, якщо часу обмаль. Тоді, це допоможе істотно прискорити роботу з адаптації проекту, а наявність копій відразу у декількох фахівців дозволить скоротити терміни будівництва. Крім того, це допоможе у випадку відновлення втрачених або зіпсованих документів.
Телефонуйте до компанії Dom4M, і ми оформимо документи максимально оперативно.
 

Ціна: 1800 грн.

Додаткова копія проекту

Додаткова копія проекту

Для передбачливих: додаткова копія проекту з печаткою

  • Ціна проекту 1 800 грн.

Виїзд архітектора

Виїзд архітектора здійснюється по м.Києву та довколишнім населеним пунктам.
Первинний виїзд припускає: отримання технічного завдання та збір інформації, комунікації, архітектурні дані будівель, уточнення лінійних і висотних розмірів ділянки, фотофіксацію.

Ціна: 1000 грн. за годину*

*час рахується з моменту виїзду з офісу, та до моменту повернення.

Виїзд архітектора

Виїзд архітектора

Отримайте консультацію та рекомендації від архітектора безпосередньо у Вас на ділянці

  • Ціна: 1 000 грн. за годину*

Пакет "Дозвіл на будівництво"

Отримання будівельного паспорта

Будівельний паспорт забудови земельної ділянки – документ, на підставі якого визначається комплекс містобудівних та архітектурних вимог до розміщення і будівництва індивідуального приватного житлового будинку (в тому числі садових, дачних будинків, господарських будівель та споруд, які знаходяться на присадибній ділянці, гаражів, елементів інженерного захисту, благоустрою та озеленення земельної ділянки), але не вище 2-ох поверхів (без урахування мансардного поверху) з площею до 300 квадратних метрів.
Для об'єктів будівництва, на які надається будівельний паспорт, розробка проекту будівництва здійснюється виключно за бажанням замовника. Проектування на підставі будівельного паспорта здійснюється без отримання містобудівних умов та обмежень.
У випадку, якщо планується будівництво приватного житлового будинку вище 2-ох поверхів (без урахування мансардного поверху), а також якщо площа будинку буде перевищувати 300 квадратних метрів, то необхідно отримати містобудівні умови та обмеження забудови земельної ділянки.
Для отримання будівельного паспорта забудовник звертається до головного управління архітектури та містобудування з письмовою заявою про наміри забудови земельної ділянки.
До заяви також додаються:

  • засвідчена в установленому порядку копія документа, що посвідчує право власності чи користування земельною ділянкою;
  • завірена в установленому порядку згода співвласників земельної ділянки на її забудову;
  • ескіз намірів забудови (місце розташування будівель та споруд на земельній ділянці, фасади, максимальні відмітки висотності, відстані до сусідніх земельних ділянок);
  • технічні умови щодо інженерного забезпечення, зібрані замовником самостійно та занесені до будівельного паспорта;
  • проект будівництва (за наявності);
  • фотографії об'єкта;
  • червоні лінії забудови М1:2000;
  • кадастровий план ділянки М1:2000;
  • топозйомка в М1:500;
  • схема забудови земельної ділянки з визначенням місця розташування запланованих об'єктів будівництва; із зазначенням запланованих під'їздів до будівель та споруд; відстань від об'єкта будівництва до вулиць (доріг); відстань від об'єкта будівництва до кордонів земельної ділянки;
  • підключення до інженерних мереж.

Органи містобудування та архітектури визначають відповідність намірів забудови земельної ділянки чинній містобудівній документації (генеральному плану населеного пункту, плану зонування та детальному плану території, схемі планування території) у частині функціонального, цільового, будівельного та ландшафтного використання земельної ділянки. Відмова про надання будівельного паспорта разом з відповідним обґрунтуванням видається спеціально уповноваженим органом містобудування та архітектури в 10-денний термін. Причиною для відмови у наданні будівельного паспорта є невідповідність намірів забудови земельної ділянки вимогам містобудівної документації на місцевому рівні, будівельним нормам, державним стандартам та правилам.

Ціна: від 6000 грн.

 

Отримання дозволу на будівництво (повідомлення або декларація про початок будівельних робіт)

Будівельні роботи - це роботи з нового будівництва, реконструкції, технічного переоснащення діючих підприємств, реставрації, капітального ремонту. Будівельні роботи можуть виконуватися замовником тільки після отримання документа, що засвідчує право власності чи користування земельною ділянкою:
Повідомлення про початок виконання будівельних робіт - це документ, який стосується об'єктів, будівництво яких здійснюється на підставі будівельного паспорта, і які не вимагають реєстрації декларації про початок виконання будівельних робіт або отримання дозволу на виконання будівельних робіт. Будівництво таких об'єктів здійснюється після направлення повідомлення про початок виконання будівельних робіт до інспекції за місцезнаходженням об'єкта будівництва і подається тільки за умови, що площа новобудови не перевищує 300 квадратних метрів.
Декларація, як і повідомлення про початок виконання будівельних робіт, надає право на будівництво. Вона потрібна для виконання будівельних робіт на об'єктах, що належать до I-III категорії складності. Підключення об'єкта будівництва до інженерних мереж та споруд без реєстрації повідомлення або декларації забороняється. За чинним законодавством, замовник несе відповідальність за виконання будівельних робіт без зареєстрованої декларації або без подачі повідомлення.

Ціна: від 3000 грн.

 

Отримання містобудівних умов та обмежень

Містобудівні умови та обмеження забудови земельної ділянки – документ, що містить комплекс планувальних та архітектурних вимог до проектування і будівництва по поверховості та щільності забудови земельної ділянки, відступів будинків і споруд від червоних ліній, меж земельної ділянки, її благоустрою та озеленення, інші вимоги до об'єкта будівництва, встановлені законодавством та містобудівною документацією. Документ складається з текстової та графічної частин.
Графічна частина містить:

  • Ситуаційну схему місця розташування земельної ділянки з відображенням зони впливу об'єкта містобудування;
  • Схему використання земельної ділянки з відображенням планувальних обмежень, граничної площі забудови, благоустрою, інших видів використання, пропонованого розташування будівель та споруд, в'їздів-виїздів, наявних інженерних мереж;
  • Схему (модель) об'ємно-просторового рішення.

Замовник має право звернутися до органу місцевого самоврядування, а також до осіб, які надали технічні умови, з проханням продовжити термін дії вихідних даних.
Містобудівні умови та обмеження забудови земельної ділянки надаються замовникові управлінням містобудування та архітектури міської ради у двотижневий строк з дня реєстрації клопотання у випадку, якщо зазначені в заяві наміри належать до переважного чи допустимого виду забудови відповідної території.
Для отримання містобудівних умов та обмежень до заяви додаються:

  • засвідчена в установленому порядку копія документа про право власності (користування) земельною ділянкою;
  • ситуаційний план-схема про місцезнаходження земельної ділянки (у довільній формі);
  • викопіювання з топографо-геодезичного плану М1:2000;
  • кадастрова довідка з містобудівного кадастру (за наявності);
  • черговий кадастровий план (витяг із земельного кадастру – за відсутності містобудівного кадастру);
  • фотофіксація земельної ділянки (з оточенням);
  • містобудівний розрахунок з техніко-економічними показниками запланованого об'єкта будівництва.

У випадку, якщо наміри забудови земельної ділянки не відповідають вимогам містобудівної документації та видам використання території, орган місцевого самоврядування, протягом місяця з дня реєстрації заяви, надає заявнику висновок щодо невідповідності та рекомендації стосовно можливої зміни намірів забудови земельної ділянки. Містобудівні умови та обмеження забудови земельної ділянки є підставою для отримання інших вихідних даних для проектування об'єкта забудови та здійснення цього проектування.

Ціна: від 6000 грн.

 

Виготовлення та погодження генерального плану

Деталізований варіант генерального плану називається детальним планом території. Він розробляється для територій житлових районів, мікрорайонів, кварталів нової забудови, комплексної реконструкції кварталів, мікрорайонів застарілого житлового фонду, територій виробничої, рекреаційної та іншої забудови. Послідовність розробки і площі територій, для яких створюються детальні плани, визначає відповідний уповноважений орган містобудування та архітектури відповідно до генерального плану населеного пункту. Детальний план території розробляється суб'єктами господарської діяльності, у штаті яких є архітектори, які мають відповідний сертифікат, що підтверджує їх кваліфікацію.
Рішення про розробку генерального плану, плану зонування території, детального плану території, розташованої в межах населеного пункту, а також про внесення змін в цю містобудівну документацію приймає відповідна сільська, селищна, міська рада. Рішення про розробку детального плану території, розташованої за межами населеного пункту, або про внесення змін до нього приймає відповідна районна державна адміністрація.

Ціна: від 10 000 грн.

 

Технічний супровід процесу спорудження / будівництва

Технічний супровід здійснюється протягом всього періоду будівництва запроектованого об'єкта, для того, щоб попередити можливість порушення державних будівельних норм, правил та законодавства у сфері будівництва. Наявність фахівця, який веде технічний нагляд за будівництвом, є однією з вимог при отриманні документа, який дозволяє розпочати будівельні роботи, а також документа, що посвідчує успішну здачу об'єкта будівництва в експлуатацію.
Технічне обстеження будівельних конструкцій та інженерних мереж здійснюється у випадках, коли необхідно встановити факт надійності будівлі та її безпечної експлуатації.
Технічний супровід забезпечується замовником(забудовником) протягом усього періоду будівництва об'єкта. Метою здійснення контролю є дотримання проектних рішень та вимог державних стандартів, будівельних норм та правил. Також повинні контролюватися обсяги робіт, виконаних під час будівництва та зміни (у тому числі шляхом знесення) такого об'єкта. Технагляд можуть здійснювати особи, які мають кваліфікаційний сертифікат, виданий архітектурно-будівельною атестаційною комісією відповідно до законодавства.

Ціна: від 2 000 грн.

 

Авторський нагляд за будівництвом

Авторський нагляд – послуга, метою якої є реалізація існуючого проекту. Такий нагляд необхідний для оформлення дозвільної документації на будівництво.
Він здійснюється архітектором - автором проекту об'єкта архітектури, іншими розробниками затвердженого проекту або уповноваженими особами (далі - генеральний проектувальник) відповідно до чинного законодавства та договору із замовником (забудовником) протягом усього періоду будівництва. При цьому, передбачається здійснення контролю за відповідністю будівельно-монтажних робіт проекту.
Такий контроль дозволить виключити всілякі неточності, з якими доводиться стикатися при будівництві або ремонті, а також заощадити гроші при підборі будівельних матеріалів, освітлення та іншого.
Існує два варіанти проведення авторського нагляду:

  • Після початку ремонтних (будівельних) робіт на об'єкті складається графік виїздів архітектора на об'єкт. Зазвичай, це відбувається двічі на тиждень. Дана схема дозволяє архітекторові перевіряти відповідність виконаних робіт затвердженому проекту, оцінювати якість робіт, проводити консультації та вирішувати будівничі питання.
  • Архітектор виїжджає на об'єкт на вимогу. Це відбувається виключно у випадках, коли виникають проблеми та неточності, які не можуть бути дозволені будівельниками на місці.

Замовник повинен розуміти, що архітектор не вирішує такі питання як: замовлення та доставка будівельних та оздоблювальних матеріалів, їх розвантаження. Він не може вплинути на терміни виконання тих чи інших робіт. Основне завдання архітектора – проконтролювати ремонтні (оздоблювальні) роботи і добитися їх відповідності з розробленим проектом.
Авторський нагляд – гарантія того, що всі ремонтні та оздоблювальні роботи приведуть до бажаного результату, який і був закладений у проект. Такі результати фіксуються в журналі, який оформляється генеральним проектувальником у двох примірниках, один з яких зберігається у замовника, а другий - у генерального проектувальника. Після прийняття об'єкта в експлуатацію генеральний проектувальник повинен зберігати примірник журналу авторського нагляду в архіві.

Ціна: від 2 000 грн.

 

Отримання декларації про готовність об'єкта до експлуатації

Прийняття в експлуатацію об'єктів, що відносяться до I-III категорії складності, та об'єктів, будівництво яких здійснено на підставі будівельного паспорта, проводиться шляхом реєстрації Державною архітектурно-будівельною інспекцією та її територіальними органами поданої замовником декларації про готовність об'єкта до експлуатації. Датою прийняття в експлуатацію об'єкта є дата реєстрації декларації або видачі сертифіката. Експлуатація об'єктів, не прийнятих в експлуатацію, забороняється.
Зареєстрована декларація або сертифікат є підставою для укладення договорів про постачання, на прийнятий в експлуатацію об'єкт, необхідних для його функціонування ресурсів - води, газу, тепла, електроенергії, включення даних про такий об'єкт до державної статистичної звітності та оформлення права власності на нього.

Ціна: від 3000 грн.

 

Послуги БТІ

Ціна 4-10 грн. за м2 Мінімальна ціна техпаспорта 600 грн. Гараж, квартира – від 800 грн.
Послуги з виготовлення технічного паспорта.
Технічний паспорт – документ, який складається на основі матеріалів технічної інвентаризації об'єкта нерухомого майна та містить основні відомості про нього. Техпаспорт виготовляється БТІ. Процедура технічної інвентаризації обов'язкова. Вона являє собою процес обстеження та технічні вимірювання нерухомості (житловий або нежитловий фонд) з визначенням фактичної площі, технічного стану об'єкта нерухомості й визначення його інвентаризаційної вартості.
Технічна інвентаризація проводиться:

  • перед прийняттям в експлуатацію об'єктів із завершеним будівництвом або після проведення реконструкції та капітального ремонту;
  • перед проведенням державної реєстрації права власності на об'єкт незавершеного будівництва;
  • перед проведенням державної реєстрації права власності на об'єкт нерухомого майна, що утворився в результаті поділу, об'єднання або виділення частки з об'єкта нерухомого майна, крім випадків, коли в результаті такого поділу, об'єднання або виділення частки завершений об'єкт приймався в експлуатацію.

В інших випадках технічна інвентаризація проводиться за бажанням замовника.
До об'єктів, що підлягають технічній інвентаризації, належать:

  • багатоквартирні житлові будинки, гуртожитки;
  • одноквартирні (садибні) житлові будинки;
  • багатофункціональні будинки і комплекси;
  • будівлі та споруди громадського та виробничого призначення, інженерні мережі, елементи благоустрою та ін.;
  • господарчі будівлі (сараї, гаражі, літні кухні, майстерні, вбиральні, погреби, навіси, котельні, бойлерні, трансформаторні підстанції, сміттєзбірники тощо);
  • господарчі споруди такі як: колодязі, вигрібні ями, паркани, ворота, хвіртки та ін.;
  • садові та дачні будинки, гаражі (що не відносяться до господарських: багатоповерхові, підземні, одноповерхові – блокові);
  • захисні споруди цивільного захисту (цивільної оборони).

Послуги з оцінки майна

Проведення оцінки майна є обов'язковим у випадках:

  • створення підприємств (господарських товариств) на базі державного майна або майна, що перебуває у комунальній власності;
  • реорганізації, банкрутства, ліквідації державних, комунальних підприємств та підприємств (господарських товариств) з державною часткою майна;
  • виділення або визначення частки майна у спільному майні, в якому є державна частка (частка комунального майна);
  • визначення вартості внесків учасників та засновників господарського товариства, якщо до зазначеного товариства вноситься майно господарських товариств з державною часткою (часткою комунального майна), а також у разі виходу (виключення) учасника або засновника із складу такого товариства;
  • приватизації та іншого відчуження у випадках, встановлених законом оренди, обміну, страхування державного майна, майна, що перебуває у комунальній власності, а також повернення цього майна на підставі рішення суду;
  • переоцінки основних фондів для цілей бухгалтерського обліку;
  • оподаткування майна за законом;
  • визначення збитків або розміру відшкодування у випадках, встановлених законодавством;
  • в інших випадках за рішенням суду або у зв'язку із необхідністю захисту суспільних інтересів.

Експертна оцінка житлових будинків, як і оцінка нерухомості інших типів, найчастіше необхідна:

  1. для цілей оподаткування при продажу, даруванні, обміні;
  2. для передачі нерухомості в заставу (кредитування);
  3. для пред'явлення в суді, зокрема при розділі майна;
  4. для переоформлення права власності при отриманні спадщини.

Особливістю оцінки житлових будинків є те, що в більшості випадків при оцінці будинку потрібне проведення також експертної грошової оцінки земельної ділянки, на який розташований цей будинок.
Оціночна вартість нерухомого майна, крім об'єктів незавершеного будівництва, визначається шляхом застосування порівняльного підходу на основі інформації про продаж нерухомого майна, яке було продано не більше ніж за шість місяців до дати проведення оцінки або пропонується для продажу на дату проведення оцінки.
Загальним алгоритмом застосування порівняльного підходу є:

  • ідентифікація об'єкта оцінки та пов'язаних з ним прав, тобто встановлення відповідності такого об'єкта наявним вихідним даним та інформації про нього;
  • підбір об'єктів порівняння;
  • визначення характеристик, які підлягають коригуванню;
  • внесення поправок;
  • визначення вартості об'єкта оцінки шляхом узгодження отриманих величин вартості об'єктів порівняння.

Оціночна вартість об'єкта оцінки може визначатися шляхом застосування інших методичних підходів, на вибір суб'єкта оціночної діяльності, з урахуванням індивідуальних характеристик об'єкта та особливостей, передбачених національними стандартами оцінки.

Приватизація земельних ділянок

Приватизація землі – це перехід права власності на земельну ділянку до фізичної або юридичної особи. Громадянин, який є користувачем землі та зацікавлений у її приватизації, повинен подати заяву до органів місцевої державної адміністрації за місцем розташування цієї ділянки. Орган місцевого самоврядування або орган виконавчої влади розглядає подану заяву протягом місяця та видає рішення на розробку проекту приватизації землі.
На розробку документації йде 1-2 дні. Видача дозволу відбувається в термін від 14 до 180 днів, залежно від того, де знаходиться земельна ділянка.
Для приватизації землі необхідно подати такі документи:

  • оригінал рішення органів державної адміністрації, в компетенції яких знаходиться передача прав власності на землю. Це рішення сільської, міської, районної, Київської чи Севастопольської адміністрацій (анексована територія);
  • копію генерального плану або проекту формування меж ділянки;
  • копії документів на будівлі та споруди (якщо вони зареєстровані);
  • копії паспорта та ІПН (для фізичних осіб), нотаріально завірену копію свідоцтва про реєстрацію, копію свідоцтва про сплату податків, копію довідки з Єдиного державного реєстру підприємств та організацій (для юридичних осіб).

Ціна: від 10 000 грн., під ключ

 

Зміна цільового призначення

Кожна земельна ділянка має певне цільове призначення. Іноді виникають ситуації, коли власнику необхідно змінити цільове призначення земельного наділу. Для цього необхідно подати заяву (клопотання) у відповідну адміністрацію, у відомстві якої знаходиться дана ділянка. До заяви необхідно додати копії таких документів:

  • державного акта, що підтверджує право власності на землю;
  • копії паспорта та ІПН;
  • обґрунтування зміни цільового призначення землі (в ньому необхідно пояснити причину зміни призначення ділянки).

Після розгляду пакету документів буде винесено дозвіл на зміну цільового призначення землі. Після цього необхідно розробити проект, погодити його з усіма інстанціями і надати затвердження до органу, який видав дозвіл на зміну цільового призначення землі. Тільки після цього буде зареєстрований новий державний акт, в якому буде вказано нове призначення земельної ділянки.
Зміна цільового призначення землі здійснюється в кілька етапів. На розробку проекту йде 1-2 дні, а на узгодження може піти до півтора місяці.
Для проведення даної процедури необхідно надати:

  • оригінал рішення державної адміністрації, до компетенції якої входить видача дозволів на зміну цільового призначення землі.
  • дозвіл органів архітектури (за його наявності).
  • фізичним особам необхідно надати копії паспортів та ІПН, для юридичних осіб необхідно надати нотаріально завірені копії свідоцтва про реєстрацію, статуту, свідоцтва про виплату податків і довідки-виписки з єдиного державного реєстру підприємств та організацій.

Відповідно до Земельного кодексу України від 25.10.2001 р. (із змінами та доповненнями), зміна цільового призначення земельних ділянок приватної власності здійснюється:

  • по земельних ділянках, розташованих в межах населеного пункту, – сільською, селищною, міською радою;
  • по земельних ділянках, розташованих за межами населених пунктів, – районною державною адміністрацією;
  • по земельних ділянках, розташованих за межами населених пунктів, що не входять в територію району, або у випадку якщо районна державна адміністрація не буде утворена, – Радою міністрів Автономної Республіки Крим, обласною державною адміністрацією.

Проект землеустрою щодо виділення земельної ділянки приватної власності, цільове призначення якої підлягає зміні, розробляється за замовленням власника земельної ділянки без надання дозволу на його розробку. Даний дозвіл видається Радою міністрів Автономної Республіки Крим, органом виконавчої влади, органом місцевого самоврядування.

Ціна: від 10 000 грн., під ключ

 

Поділ та об'єднання земельних ділянок

Поділ земельної ділянки можливий у таких випадках:

  1. за бажанням власника земельної ділянки, за умови, що в результаті поділу, межі ділянки не будуть порушені;
  2. розділ земельної ділянки у разі відчуження однієї або декількох її частин;
  3. поділ в натурі при розділі між пайовими співвласниками земельної ділянки;
  4. розділ земельної ділянки можна здійснити, якщо кожна з частин, отримана після поділу, може стати індивідуальною ділянкою землі.

Поділ земельної ділянки проводиться за бажанням власника відокремити одну або кілька частин. При поділі ділянки землі на кілька – встановлюються нові межові знаки.

Поділ земельної ділянки можливий після розробки документації із землеустрою та формуванню ділянки у Державному земельному кадастрі з метою присвоєння кадастрового номера та проведення державної реєстрації права власності окремо на кожну з ділянок, які виникли в результаті розділу.
Об'єднання земельних ділянок можливо при дотриманні наступних умов:

  1. всі земельні ділянки належать одному власнику;
  2. ділянки мають спільний кордон;
  3. об'єднювані ділянки мають тотожне цільове призначення.

Об'єднання здійснюється за бажанням власника земельної ділянки.
Створені в результаті поділу чи об'єднання земельні ділянки після оформлення документів в Держземагентстві, в обов'язковому порядку реєструється в Державній реєстраційній службі.
Для процедури поділу / об'єднання земельних ділянок необхідно надати наступні документи:

  • нотаріально завірена заява про поділ / об'єднання земельних ділянок;
  • нотаріально завірена копія державного акта на землю;
  • копія паспорта та ідентифікаційного коду (для фізичних осіб), нотаріально завірені копії свідоцтва про реєстрацію, статуту, свідоцтва про сплату податків, довідки з єдиного державного реєстру підприємств та організацій (для юридичних осіб).

Ціна: від 10 000 грн., під ключ за кожну ділянку

 

Присвоєння кадастрових номерів

Кадастровий номер – це унікальний номер, присвоєний тільки одній земельній ділянці. Обов'язковим етапом присвоєння кадастрового номера є занесення даного номера до електронної бази. Кадастровий номер зберігається протягом усього періоду існування ділянки (як фізично, так і юридично). При цьому зміна власника земельної ділянки або її цільового призначення не дає підстав для зміни кадастрового номера.
Список документів, необхідних для присвоєння кадастрового номера ділянкам, на які видавалися державні акти старого зразка (до 2003 року):

  • нотаріально завірена копія Державного акта старого зразка;
  • викопіювання з зазначенням місця розташування земельної ділянки, завірена печаткою сільської ради (садового товариства) та підписом голови;
  • довідка з сільської ради (садового товариства);
  • довідка з районного центру ДЗК (державного земельного кадастру) про те, що Державний акт зареєстрований у Книзі реєстрації державних актів на земельні ділянки;
  • копія всіх сторінок паспорта та ідентифікаційного коду для фізичної особи або нотаріально завірені копії всіх установчих документів юридичної особи.

Власники земельних ділянок, які оформили право власності або право користування до 2003 року (держакти червоного або жовтого кольору), можуть зіткнутися з труднощами при відчуженні земельної ділянки, оскільки в цих актах немає кадастрового номера. У договорах ж купівлі-продажу, дарування, міни, а також в договорах іпотеки, з метою ідентифікації земельної ділянки, вказується кадастровий номер.
Наша компанія реалізує комплекс послуг з підготовки та внесення інформації до бази даних Державного кадастрового обліку земельних ділянок.

Ціна: від 6000 грн.

 

 

 

Державна реєстрація прав на нерухоме майно

Державна реєстрація прав проводиться органом державної реєстрації прав та нотаріусом, шляхом внесення записів до Державного реєстру прав. Нотаріус при цьому виступає як спеціальний суб'єкт, на якого покладаються функції державного реєстратора прав на нерухоме майно.
Орган державної реєстрації прав проводить:

  • державну реєстрацію прав на нерухоме майно за місцем знаходження такого майна;
  • державну реєстрацію обтяжень прав на нерухоме майно незалежно від місця розташування такого майна;
  • облік безхазяйного нерухомого майна за місцем знаходження такого майна.

Якщо нерухоме майно розташоване в межах території, на якій діють два і більше органів державної реєстрації прав, то реєстрація прав та облік безхазяйного нерухомого майна проводяться одним з таких органів, обраним на розсуд зацікавленої особи або уповноваженої ним особи.
У Державному реєстрі прав реєструються майнові права та їх обтяження на об'єкти нерухомого майна, а саме: земельні ділянки, підприємства як єдині майнові комплекси, житлові будинки, будівлі, споруди або їх окремі частини, квартири, житлові та нежитлові приміщення.

Ціна: від 3000 грн.

 

Пакет "Дозвіл на будівництво"

Пакет "Дозвіл на будівництво"

Для тих, хто будується у Києві та Київській області, та деяких інших містах, можемо запропонувати допомогу в оформленні документів.

 

  • з'ясуйте ціну в менеджера
Фасади

Проект одноповерхового будинку з декором зі штучного каменю 4M635

Чудовий одноповерховий котедж, виконаний в німецькому стилі, стане не тільки окрасою заміської ділянки, а й комфортабельним житлом для середньостатистичної сім'ї. В основі європейської архітектури лежать принципи раціоналізму і практичності. Це втілено як в екстер'єрі, так і в плануванні будинку. Котедж представлений прямокутною коробкою з прибудованим приміщенням гаража. Невеликий цоколь, ганок вітальні і вхідний портал декоровані штучним каменем. Окрасою будинку є простора відкрита тераса з колоною і дерев'яною конструкцією для літнього сонцезахисного навісу. Вікна прямокутні, двері панорамні, дах чотирьохскатний з металочерепиці.
Кольорове виконання екстер'єру представлено у вигляді урочистого контрасту білих стін і чорної покрівлі. Строгість архітектурного ансамблю розбавлена ​​коричневим декором зі штучного каменю і фасадних панелей, втіленим у фрагментарною обробці стін. Завершальним елементом зовнішнього вигляду садиби є зелень стриженого газону, численних чагарників і різнобарв'я клумб, які тут всюди.
Внутрішнє планування котеджу максимально раціональне, кожен метр площі має своє призначення. Невеликий коридор забезпечує функцію прямого доступу до окремих спальнях членів сім'ї. Зона сну включає дві дитячі кімнати та квартири господаря будинку з власним санвузлом та гардеробом. Сюди можна віднести загальний санвузол і ванну кімнату для всіх членів сім'ї.
Центральне місце будинку відведено вітальні. Це великий зал, що включає зону відпочинку, їдальню і кухню. Перегородки відсутні, тому створюється враження безмежного простору. Зал межує з відкритою терасою. За рахунок її площі зона відпочинку в літній час істотно розширюється. Сюди виставляють меблі, і частина вільного часу сім'я проводить саме тут.
Гордістю вітальні вважається справжній камін. Ця споруда уособлює вогнище, тому навколо нього любить збиратися вся родина. Крім забезпечення декоративної функції, камін виконує завдання альтернативного опалення. Дбайливі господарі в повному обсязі використовують його в період міжсезоння, економлячи на обігріві житла.
У вітальні встановлений великий банкетний стіл. За ним не тільки проходять сімейні трапези, а й влаштовують святкові урочистості та зустрічають друзів. До залу примикає територія кухні. Для зручності поруч з кухнею обладнана комора для зберігання їстівних запасів.
На окрему увагу заслуговує блок технічних приміщень, що складається їх просторого гаража для автомобіля представницького класу і котельні, яка виконує функцію домашньої майстерні. Частина, що залишилася площа котеджу припадати на містку передпокій з шафами для одягу та взуття.

Чудовий одноповерховий котедж, виконаний в німецькому стилі, стане не тільки окрасою заміської ділянки, а й комфортабельним житлом для середньостатистичної сім'ї. В основі європейської архітектури лежать принципи раціоналізму і практичності. Це втілено як в екстер'єрі, так і в плануванні будинку. Котедж представлений прямокутною коробкою з прибудованим приміщенням гаража. Невеликий цоколь, ганок вітальні і вхідний портал декоровані штучним каменем. Окрасою будинку є простора відкрита тераса з колоною і дерев'яною конструкцією для літнього сонцезахисного навісу. Вікна прямокутні, двері панорамні, дах чотирьохскатний з металочерепиці.
Кольорове виконання екстер'єру представлено у вигляді урочистого контрасту білих стін і чорної покрівлі. Строгість архітектурного ансамблю розбавлена ​​коричневим декором зі штучного каменю і фасадних панелей, втіленим у фрагментарною обробці стін. Завершальним елементом зовнішнього вигляду садиби є зелень стриженого газону, численних чагарників і різнобарв'я клумб, які тут всюди.
Внутрішнє планування котеджу максимально раціональне, кожен метр площі має своє призначення. Невеликий коридор забезпечує функцію прямого доступу до окремих спальнях членів сім'ї. Зона сну включає дві дитячі кімнати та квартири господаря будинку з власним санвузлом та гардеробом. Сюди можна віднести загальний санвузол і ванну кімнату для всіх членів сім'ї.
Центральне місце будинку відведено вітальні. Це великий зал, що включає зону відпочинку, їдальню і кухню. Перегородки відсутні, тому створюється враження безмежного простору. Зал межує з відкритою терасою. За рахунок її площі зона відпочинку в літній час істотно розширюється. Сюди виставляють меблі, і частина вільного часу сім'я проводить саме тут.
Гордістю вітальні вважається справжній камін. Ця споруда уособлює вогнище, тому навколо нього любить збиратися вся родина. Крім забезпечення декоративної функції, камін виконує завдання альтернативного опалення. Дбайливі господарі в повному обсязі використовують його в період міжсезоння, економлячи на обігріві житла.
У вітальні встановлений великий банкетний стіл. За ним не тільки проходять сімейні трапези, а й влаштовують святкові урочистості та зустрічають друзів. До залу примикає територія кухні. Для зручності поруч з кухнею обладнана комора для зберігання їстівних запасів.
На окрему увагу заслуговує блок технічних приміщень, що складається їх просторого гаража для автомобіля представницького класу і котельні, яка виконує функцію домашньої майстерні. Частина, що залишилася площа котеджу припадати на містку передпокій з шафами для одягу та взуття.

Прочитати повний текст
Коментарі
Щоб залишити коментар, Вам потрібно або заповнити поля нижче, або авторизуватися на сайті.
Завантажити фото, до 5 штук
Ваша оцінка:
Подібні
ЗАМОВИТИ
Категорії
© 2010-2021 Dom4M. Всі права захищені
This site is protected by reCAPTCHA and the Google Privacy Policy and Terms of Service apply